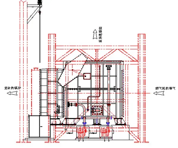
Amortitzador de derivació
L’amortidor de derivació s’utilitza principalment per al reciclatge de calor residual dels gasos de combustió de la turbina de gas. Quan entra el cor residual, s’obre un amortidor de gas (en posició plana) per deixar-lo entrar a la caldera. Quan no cal la calor residual, l’amortidor de gas s’apaga (en posició vertical) i el fum de gas s’expulsa per la xemeneia de derivació. El mecanisme d'accionament de l'amortidor de gasos de combustió es pot activar hidràulicament o elèctricament. Amortidor hidràulic de gasos de combustió: el funcionament estable, la pantalla de l'amortiment i el mecanisme d'accionament són de resistència a l'impacte; el parell de conducció de la pantalla amortidora i el temps de funcionament adopten una funció d’ajust sense pas. Pot apagar ràpidament la pantalla del amortidor en cas d'emergència (< 30 segons); Recanvis i fàcil manteniment. Amortidor de gasos de combustió accionat per motor: d’estructura senzilla i sistema senzill i de manteniment diari, amb poca superfície al sòl.
Quan funciona amb normalitat, l’amortidor comença a girar; en apropar-se al punt final, el parell redueix gradualment fins que el mecanisme de segellat es comprimeix fortament; aquest procés s'aconsegueix automàticament mitjançant el sistema hidràulic. La detecció de l’angle de gir s’aconsegueix amb els dos grups de commutadors de límit i transductors de posició de la vàlvula dins de la caixa del sensor i l’angle de gir es pot visualitzar simultàniament a l’armari de control local i a la sala de control principal. Quan l'amortidor gira a l'angle de 10 ° o 80 °, entra a la zona tampó del cilindre d'oli; mentrestant, el transductor de posició de la vàlvula envia senyal i el sistema hidràulic i el sistema elèctric canvien automàticament al mode de posicionament, cosa que garanteix la posició de l'amortidor amb precisió. En la condició automàtica, el sistema obrirà la vàlvula de papallona i el bufador d’aire corresponents per aconseguir el segellat dinàmic i enviarà dos senyals de pressió de l’aire de segellat (normal i baixa) d’acord amb la posició de l’amortidor (0 ° o 90 °) )

Etiquetes populars: amortidor de derivació, Xina, proveïdors, fabricants, fàbrica, compra







